
Capela Nossa Senhora de Fátima - São Bernardo do Campo - SP
Mitra Diocesana de Santo André
Projeto: Estudio Brasil Arquitetura e Urbanismo
Projeto selecionado para participar da 6ª BIA - Bienal Internacional de Arquitetura e Design de São Paulo em 2005
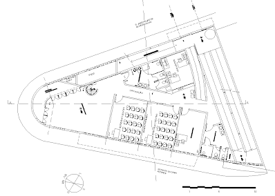
O lote para a construção da futura Igreja de Nossa Senhora de Fátima em São Bernardo com área aproximada de 350,00 m2, é limitado pela esquina de duas ruas com ângulo bastante agudo e apresenta forte inclinação entre elas. Essa inclinação foi aproveitada para criar acessos independentes para o salão (pela estrada Cama Patente), possibilitando o uso independente deste para outras atividades sem prejuízo da rotina da igreja. O acesso para a nave e para as salas de catequese é feito pela rua José Felipe de Oliveira.
Projeto selecionado para participar da 6ª BIA - Bienal Internacional de Arquitetura e Design de São Paulo em 2005
O lote para a construção da futura Igreja de Nossa Senhora de Fátima em São Bernardo com área aproximada de 350,00 m2, é limitado pela esquina de duas ruas com ângulo bastante agudo e apresenta forte inclinação entre elas. Essa inclinação foi aproveitada para criar acessos independentes para o salão (pela estrada Cama Patente), possibilitando o uso independente deste para outras atividades sem prejuízo da rotina da igreja. O acesso para a nave e para as salas de catequese é feito pela rua José Felipe de Oliveira.
Foram criados três níveis: O mais baixo do salão com entrada pela estrada; o intermediário com a catequese acessado pela rua José Felipe de Oliveira e o mais alto da nave cuja entrada é a mesma da catequese.
Todo o conjunto é ligado por conjunto de rampas, permitindo o acesso de pessoas portadoras de deficiências e ou idosas a todos os ambientes, inclusive aos sanitários, também dimensionados para receber pessoas nessas condições. Sendo assim uma pessoa que está no salão (embasamento) pode se dirigir à nave (nível mais alto) sem precisar subir nenhum degrau de escada.
A rampa de entrada na nave contorna um árvore azinheira que é uma referência à padroeira da igreja. Nessa entrada existe ainda um grande vitral com a imagem de Nossa Senhora.
Planta - nível da Nave
Maquete
Croquis


















.jpg)










































Boa tarde, sou arquiteta moradora de São Bernardo e fiquei curiosa sobre este projeto. Em qual bairro se localiza esta Igreja? O projeto foi executado? Juliana.
ResponderExcluirOla, meu nome é Catherine, estudante de arquitetura. Gostaria de saber se voces tem a planta baixa, corte ou fachadas da Igrejinha Nossa Senhora de Fátima em Brasilia, projeto do Oscar Niemeyer.
ResponderExcluirSe tiverem por favor estou muito interessada.
Obrigada, Catherine.